Projektieren | Planen | Bauen

Modernes und zentrales Wohnen im Lindenquartier

Neubau von Eigentumswohnungen im Wohn- Geschäftshaus Lindenallee 2-4, 46519 Alpen
In der Lindenallee 2-4 entsteht das Neubauvorhaben "Modernes und zentrales Wohnen im Lindenquartier"

Die Gemeinde Alpen, gelegen im Kreis Wesel in Nordrhein-Westfalen, zählt rund 12.500 Einwohner und befindet sich in der niederrheinischen Tiefebene zwischen Xanten und Rheinberg. Die Entfernung nach Duisburg beträgt 33 km. Düsseldorf ist 56 km entfernt.

Die Umgebung ist geprägt von ländlicher Idylle und weitläufigen Naturschutzgebieten, die zu einem hohen Wohn- und Erholungswert beitragen.

Alpen gliedert sich in die vier amtlichen Ortschaften Alpen, Bönninghardt, Menzelen und Veen sowie in die Ortsbereiche Bönning, Drüpt, Huck und Rill.
Die Einwohnerstruktur setzt sich aus einer ausgewogenen Mischung verschiedener Alters- und Lebensgruppen zusammen, was die Attraktivität der Gemeinde als Wohnstandort zusätzlich unterstreicht.

Lage und Infrastruktur
Die zum Verkauf stehenden Wohnungen befinden sich in zentraler Lage innerhalb des Ortskerns von Alpen. In unmittelbarer Umgebung stehen Einkaufsmöglichkeiten wie Aldi und Netto zur Verfügung.

Ebenfalls fußläufig erreichbar sind gastronomische Betriebe, Bäckereien, Cafés, Apotheken, Arztpraxen sowie ein Fitnessstudio. Ergänzt wird die Infrastruktur durch eine Bücherei und die Gemeindeverwaltung. Die nahegelegene Bushaltestelle „Adenauerplatz“ gewährleistet eine sehr gute Anbindung an den öffentlichen Personennahverkehr. Den Bahnhof erreichen Sie in 1,2 km.

Familien profitieren von kurzen Wegen. Der Kindergarten St.Ulrich ist 190 m entfernt. Die Grundschule Alpen liegt nur rund 450 m entfernt. Die Sekundarschule erreichen Sie in etwa 950 m.

Zusammenfassung
Die angebotenen Wohnungen vereinen eine zentrale Ortslage mit einer modernen Wohnqualität und einer hervorragenden infrastrukturellen Versorgung.
Für Erwerber, die eine zeitgemäße Wohnform inmitten des Zentrums von Alpen suchen, stellt dieses Neubauprojekt eine besonders attraktive Option dar.

  • ab 60m² Wohnfläche
  • 2-3 Zimmerwohnungen
  • zentrale Lage
  • Kaufpreis: ab 239.900 € (zzgl. Courtage)
  • hoher Standard
  • durchdachte Raumaufteilung
  • Grundriss 1.OG
  • Grundriss 2.OG
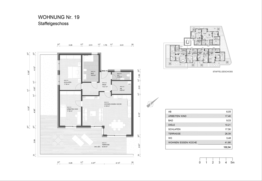
  • Grundriss Staffelgeschoss
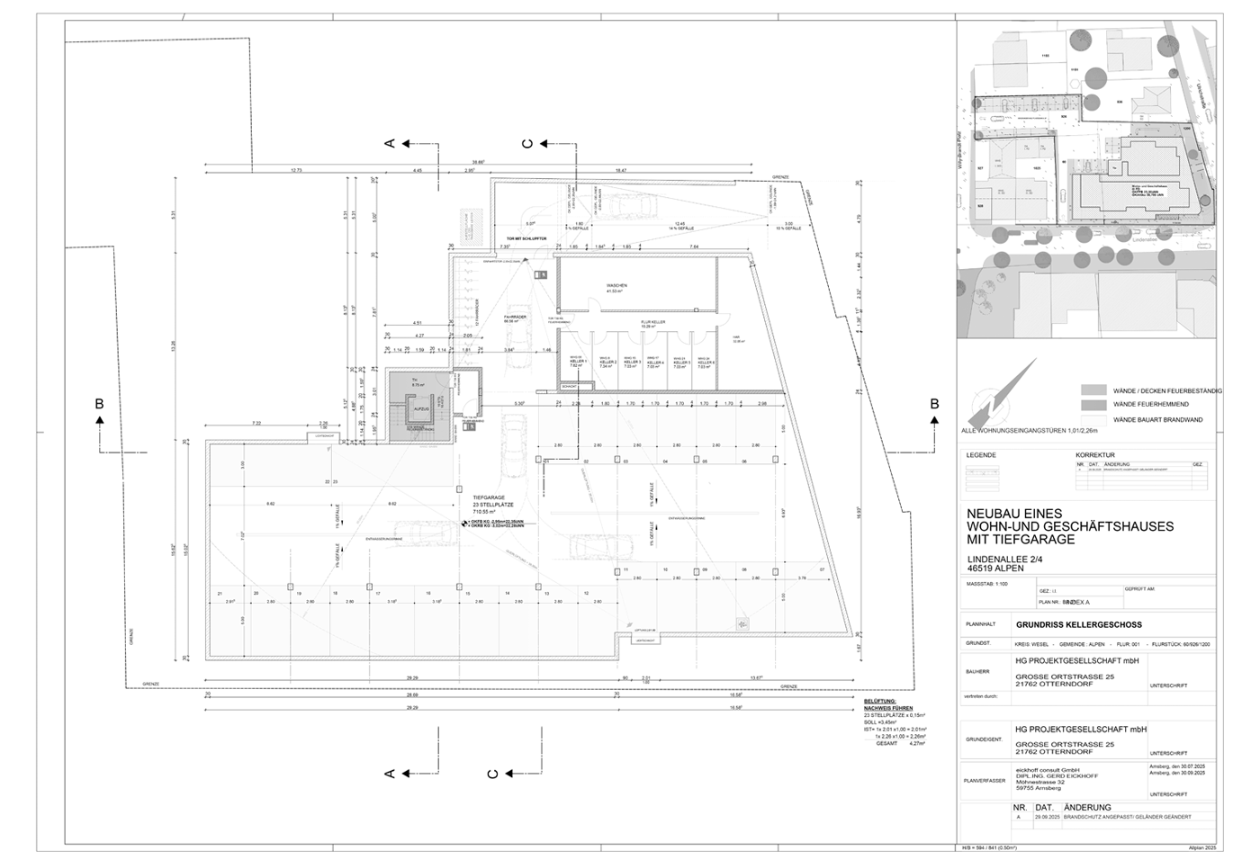
  • Grundriss Kellergeschoss
  • Wohnungen
  • Lageplan

Downloads


Jetzt bewerben

Zur Zeit sind alle Wohnungen reserviert!

Bitte rechnen Sie 8 plus 2.

zurück zur Übersicht

© 2026 HG Projektgesellschaft mbH
Webdesign & Umsetzung: Kiehr Design GmbH Otterndorf

Wir verwenden ausschließlich technisch erforderliche Cookies, sogenannte Session-Cookies, die für die Funktion der Website erforderlich sind. Wenn Sie unsere Website nutzen möchten, stimmen Sie bitte der Verwendung dieser Cookies zu. Weitere Informationen finden Sie in unserer Datenschutzerklärung.

You are using an outdated browser. The website may not be displayed correctly. Close